11 Bedroom
6 Bathroom
3500 - 5000 sqft
Central Air Conditioning
Forced Air
$1,075,900
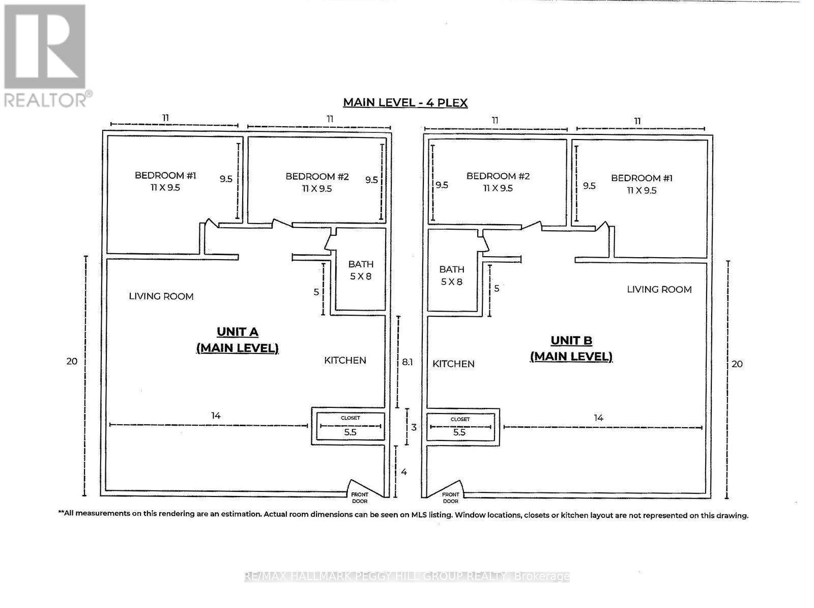
UNBEATABLE INVESTMENT OPPORTUNITY IN BARRIE'S LAKESHORE DISTRICT - RARE LEGAL MULTIPLEX WITH RELIABLE CASH FLOW & STRONG FUTURE GROWTH POTENTIAL! Outstanding opportunity to acquire a legal income-generating multiplex in one of Barrie's most coveted Lakeshore locations, just steps from Kempenfelt Bay and Centennial Beach. Within walking distance of restaurants, shopping, parks, and Barrie's vibrant downtown core filled with entertainment, community events, and waterfront activities, this property truly delivers on lifestyle and convenience. The location also offers excellent connectivity with quick access to the Allandale Waterfront GO Station, local transit routes, and Highway 400. The main front unit features a charming covered porch, a generous yard, a bright, open eat-in kitchen and living room, three upper-level bedrooms, and a full bath. Comfort is assured with forced-air heating and central air conditioning. Behind it, the rear fourplex offers four well-designed units, each with an eat-in kitchen, open living space, two bedrooms, and a full bath, all heated with electric baseboards. With an extended driveway providing ample parking, separate entrances and utility metres, individual storage for every unit, and all kitchen appliances included, this versatile property generates reliable income with plenty of potential for upgrades and future growth. Properties of this scale and in such a prime location are rarely available - secure this exceptional investment today and reap the rewards for years to come! (id:63244)
Property Details
|
MLS® Number
|
S12998026 |
|
Property Type
|
Multi-family |
|
Community Name
|
Sanford |
|
Amenities Near By
|
Park, Public Transit, Schools, Beach |
|
Equipment Type
|
Water Heater |
|
Features
|
Flat Site, Sump Pump |
|
Parking Space Total
|
6 |
|
Rental Equipment Type
|
Water Heater |
Building
|
Bathroom Total
|
6 |
|
Bedrooms Above Ground
|
11 |
|
Bedrooms Total
|
11 |
|
Age
|
100+ Years |
|
Amenities
|
Separate Electricity Meters |
|
Appliances
|
Water Heater, Dryer, Stove, Washer, Refrigerator |
|
Basement Features
|
Separate Entrance |
|
Basement Type
|
Full |
|
Cooling Type
|
Central Air Conditioning |
|
Exterior Finish
|
Brick, Vinyl Siding |
|
Foundation Type
|
Stone, Block |
|
Half Bath Total
|
1 |
|
Heating Fuel
|
Natural Gas |
|
Heating Type
|
Forced Air |
|
Stories Total
|
2 |
|
Size Interior
|
3500 - 5000 Sqft |
|
Type
|
Other |
|
Utility Water
|
Municipal Water |
Parking
Land
|
Acreage
|
No |
|
Fence Type
|
Partially Fenced |
|
Land Amenities
|
Park, Public Transit, Schools, Beach |
|
Sewer
|
Sanitary Sewer |
|
Size Depth
|
165 Ft |
|
Size Frontage
|
66 Ft |
|
Size Irregular
|
66 X 165 Ft ; 65.78 X 163.32 X 66.01 Ft |
|
Size Total Text
|
66 X 165 Ft ; 65.78 X 163.32 X 66.01 Ft|under 1/2 Acre |
|
Surface Water
|
Lake/pond |
|
Zoning Description
|
Rm2 |
Rooms
| Level |
Type |
Length |
Width |
Dimensions |
|
Second Level |
Kitchen |
2.46 m |
1.65 m |
2.46 m x 1.65 m |
|
Second Level |
Living Room |
4.27 m |
6.1 m |
4.27 m x 6.1 m |
|
Second Level |
Bedroom |
3.35 m |
2.87 m |
3.35 m x 2.87 m |
|
Second Level |
Bedroom |
3.35 m |
2.87 m |
3.35 m x 2.87 m |
|
Second Level |
Kitchen |
2.46 m |
1.65 m |
2.46 m x 1.65 m |
|
Second Level |
Living Room |
4.27 m |
6.1 m |
4.27 m x 6.1 m |
|
Second Level |
Bedroom |
3.35 m |
2.87 m |
3.35 m x 2.87 m |
|
Second Level |
Bedroom |
3.35 m |
2.87 m |
3.35 m x 2.87 m |
|
Second Level |
Bedroom |
3.71 m |
3.1 m |
3.71 m x 3.1 m |
|
Second Level |
Bedroom |
4.01 m |
3.66 m |
4.01 m x 3.66 m |
|
Second Level |
Bedroom |
2.82 m |
2.64 m |
2.82 m x 2.64 m |
|
Main Level |
Foyer |
1.96 m |
3.66 m |
1.96 m x 3.66 m |
|
Main Level |
Kitchen |
2.46 m |
1.65 m |
2.46 m x 1.65 m |
|
Main Level |
Living Room |
4.27 m |
6.1 m |
4.27 m x 6.1 m |
|
Main Level |
Bedroom |
3.35 m |
2.87 m |
3.35 m x 2.87 m |
|
Main Level |
Bedroom |
3.35 m |
2.87 m |
3.35 m x 2.87 m |
|
Main Level |
Kitchen |
6.43 m |
3.73 m |
6.43 m x 3.73 m |
|
Main Level |
Living Room |
3.66 m |
3.73 m |
3.66 m x 3.73 m |
|
Main Level |
Kitchen |
2.46 m |
1.65 m |
2.46 m x 1.65 m |
|
Main Level |
Living Room |
4.27 m |
6.1 m |
4.27 m x 6.1 m |
|
Main Level |
Bedroom |
3.35 m |
2.87 m |
3.35 m x 2.87 m |
|
Main Level |
Bedroom |
3.35 m |
2.87 m |
3.35 m x 2.87 m |
Utilities
|
Cable
|
Available |
|
Electricity
|
Installed |
|
Sewer
|
Installed |
https://www.realtor.ca/real-estate/29603887/81-innisfil-street-barrie-sanford-sanford