5 Bedroom
3 Bathroom
2000 - 2500 sqft
Fireplace
Central Air Conditioning
Forced Air
$799,990
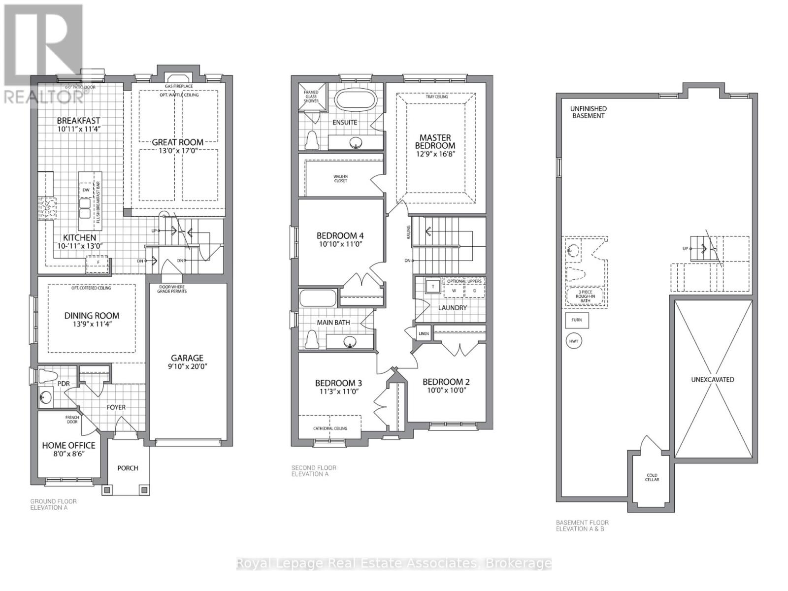
Welcome to 1386 Davis Loop, a beautiful 4+1 bedroom, 2.5 bathroom home offering over 2,000 sq.ft of comfortable living space. Just 2 years new, this home features a bright, open layout with separate living and dining areas, perfect for both everyday living and hosting. The main floor offers oak hardwood flooring, high ceilings, and large windows with zebra blinds throughout, bringing in plenty of natural light. The cozy living room with a gas fireplace creates the perfect space to unwind. At the front of the home, you have a versatile office and a convenient powder room, with the office easily used as a guest room or additional bedroom. Upstairs, you'll find four spacious bedrooms, including a primary suite with a walk-in closet and tray ceilings, along with a private ensuite featuring double sinks, a freestanding tub, and a separate shower. Laundry is conveniently located on the second floor, along with another full bathroom. The expansive unfinished basement offers incredible potential with a bathroom rough-in, ready for your future plans. The backyard provides a private outdoor space to enjoy during the warmer months. Located just steps from Lake Simcoe, the marina, and nearby golf courses, this home offers a peaceful lifestyle while still being close to everything you need. Schools, parks, and local shops are all nearby, making it a great choice for families. A perfect opportunity to enjoy a slower, more relaxed pace of life without giving up convenience. (id:63244)
Property Details
|
MLS® Number
|
N12998082 |
|
Property Type
|
Single Family |
|
Community Name
|
Lefroy |
|
Amenities Near By
|
Beach, Golf Nearby, Marina, Schools |
|
Community Features
|
School Bus |
|
Equipment Type
|
Water Heater, Water Heater - Tankless |
|
Features
|
Guest Suite |
|
Parking Space Total
|
3 |
|
Rental Equipment Type
|
Water Heater, Water Heater - Tankless |
Building
|
Bathroom Total
|
3 |
|
Bedrooms Above Ground
|
4 |
|
Bedrooms Below Ground
|
1 |
|
Bedrooms Total
|
5 |
|
Age
|
0 To 5 Years |
|
Amenities
|
Fireplace(s) |
|
Appliances
|
Water Heater - Tankless, Blinds, Dryer, Washer |
|
Basement Development
|
Unfinished |
|
Basement Type
|
N/a (unfinished) |
|
Construction Style Attachment
|
Detached |
|
Cooling Type
|
Central Air Conditioning |
|
Exterior Finish
|
Brick Facing |
|
Fireplace Present
|
Yes |
|
Fireplace Total
|
1 |
|
Flooring Type
|
Hardwood, Ceramic |
|
Foundation Type
|
Concrete |
|
Half Bath Total
|
1 |
|
Heating Fuel
|
Natural Gas |
|
Heating Type
|
Forced Air |
|
Stories Total
|
2 |
|
Size Interior
|
2000 - 2500 Sqft |
|
Type
|
House |
|
Utility Water
|
Municipal Water |
Parking
Land
|
Acreage
|
No |
|
Land Amenities
|
Beach, Golf Nearby, Marina, Schools |
|
Sewer
|
Sanitary Sewer |
|
Size Frontage
|
28 Ft |
|
Size Irregular
|
28 Ft |
|
Size Total Text
|
28 Ft |
Rooms
| Level |
Type |
Length |
Width |
Dimensions |
|
Second Level |
Primary Bedroom |
3.93 m |
5.12 m |
3.93 m x 5.12 m |
|
Second Level |
Bedroom 2 |
3.05 m |
3.05 m |
3.05 m x 3.05 m |
|
Second Level |
Bedroom 3 |
3.44 m |
3.35 m |
3.44 m x 3.35 m |
|
Second Level |
Bedroom 4 |
3.08 m |
3.35 m |
3.08 m x 3.35 m |
|
Second Level |
Laundry Room |
|
|
Measurements not available |
|
Main Level |
Great Room |
3.96 m |
5.18 m |
3.96 m x 5.18 m |
|
Main Level |
Kitchen |
3.05 m |
3.96 m |
3.05 m x 3.96 m |
|
Main Level |
Eating Area |
3.08 m |
3.47 m |
3.08 m x 3.47 m |
|
Main Level |
Dining Room |
4.24 m |
3.47 m |
4.24 m x 3.47 m |
|
Main Level |
Office |
2.44 m |
2.62 m |
2.44 m x 2.62 m |
https://www.realtor.ca/real-estate/29603881/1386-davis-loop-innisfil-lefroy-lefroy